365bet官网

365bet(中国)官方网站 下东平路翁厝巷10号原状修建建设工程规划许可批前公示

2023-09-11 14:58
来源:365bet(中国)官方网站 自然资源局
【浏览字体:

  依据有关法律、法规及《广东省城乡规划条例》的要求,现将365bet(中国)官方网站 下东平路翁厝巷10号原状修建的建设工程规划许可予以批前公示,公示内容如下:

  建设单位(个人): 业权人:沈文记  报建人:沈志浩

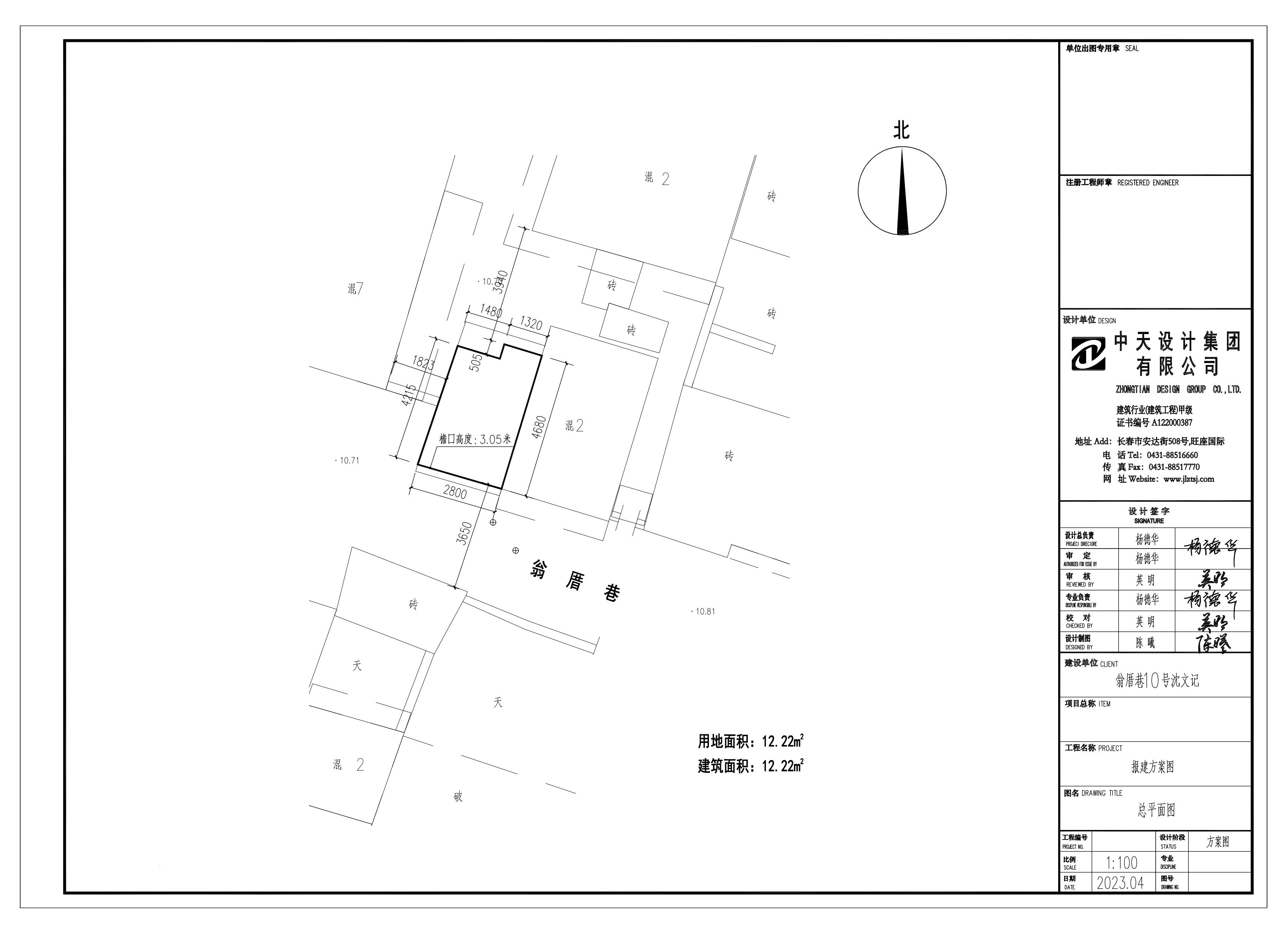
  建设项目名称: 原状修建

  建设位置:365bet(中国)官方网站 下东平路翁厝巷10号

  建设规模:壹幢壹层,总建筑面积12.22㎡

  公示日期:2023年9月11日—2023年9月20日

  有关上述项目的详细信息,可到365bet(中国)官方网站 自然资源局工程规划管理科(365bet大道北段市自然资源局五楼)查询。

  依照《广东省城乡规划条例》的规定,申请人、利害关系人对许可事项提出异议的,可在公示之日起十日内向本局提出申述(申述采用书面形式,个人申述材料应亲笔签名,并附身份证复印件;单位申述应由法人代表签章)。逾期未提出的,视为放弃上述权利。

  监督电话:2262632

  特此公示。


  365bet(中国)官方网站 自然资源局

  2023年9月11日

12723760133878790212.jpg



附件: